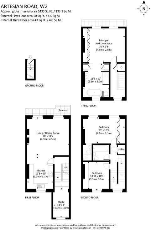
Floor Plan

EPC

About This Property
15 Artesian Road a beautifully renovated three-bedroom triplex right in the heart of Notting Hill. The home is set in a great position on the street with views straight down Northumberland Place.
Finished to the signature West11 standard, the apartment is arranged over three well-designed floors. You enter on the raised ground floor, where a study area overlooks the rear gardens. Upstairs, the first floor opens into a bright, fully open-plan living, kitchen and dining space, all extending out to a generous west-facing L-shaped terrace.
The second floor offers a stylish family bathroom and two good-sized double bedrooms, one with its own en-suite shower room. The entire top floor is dedicated to the principal suite, complete with a spacious front-facing bedroom and a luxurious en-suite featuring a freestanding bathtub and separate shower.
Each bedroom comes with air conditioning and bespoke wardrobes, adding comfort and practicality throughout.