Planning Permission Granted

6 bedroom detached house for sale in Bankhall Lane, Hale, WA15
Location: Altrincham


  • £2,500,000

    6 bedroom | 3 bathroom | 6,035 sq ft

Floor/Site Plans


EPC


About This Property

Key features

  • Planning permission granted
  • Tremendous development opportunity
  • Mature 0.74 acre corner garden plot
  • Prime residential location

Description

A superb development opportunity with Planning Permission. A large, detached family home set in an exceptionally private and secure setting on a plot of 0.74 acres.

EXISTING PROPERTY
A superb development opportunity with Planning Permission to transform the existing house into a stunning contemporary family home. Currently, an attractive Arts and Crafts style detached family home believed to date back to the 1910's offering spacious and well-proportioned accommodation arranged over three floors totaling 6,000 sq.ft. Offering a tremendous opportunity for extension and complete refurbishment (Planning granted) or knock down and redevelopment (subject to additional planning).

PLANNING APPLICATION OVERVIEW
Ref: 115145/HHA/24. Date of decision: 25th July 2025. Extension of rear basement and erection of single storey side/rear extension and associated external alterations including Juliette balcony to rear, landscaping and new windows. Subject to conditions. 

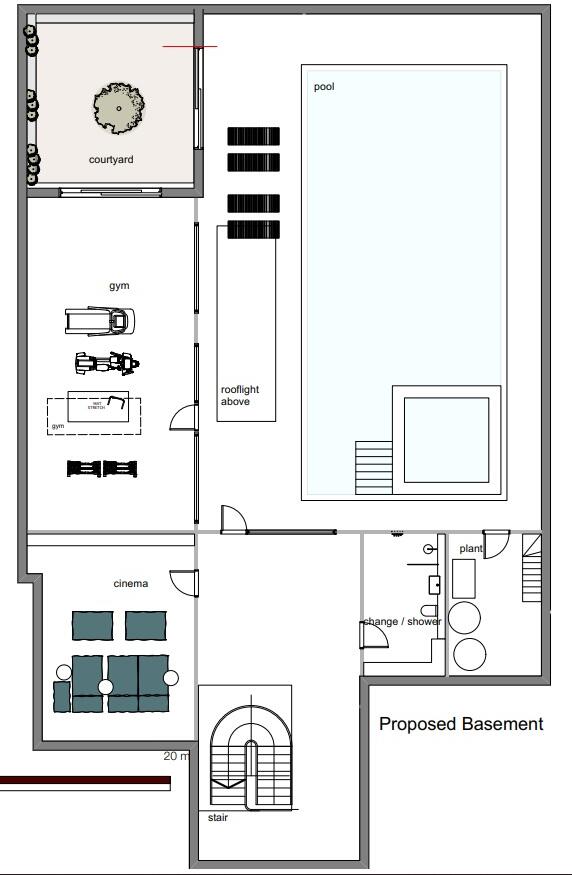
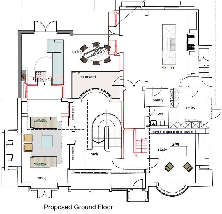
THE PROPOSAL
For a rear single-story extension and basement extension to include a lightwell with associated renovation works. Proposed plans available. The accommodation features a large reception hallway with a sweeping staircase, a huge open-plan kitchen with a large island, a dining room, and a living room with a glazed balustrade overlooking the lower courtyard. There are two further reception rooms, comprising a formal lounge and a study, as well as a utility room, pantry, and a ground-floor WC. To the first floor there is a feature galleried landing, a master bedroom suite with dressing room and a large ensuite bathroom four further bedrooms all with ensuites. The basement is an amazing feature of this property with full leisure suite including a large pool, gym, media/cinema, changing room, plant room and delightful courtyard allowing natural light and a link to the ground floor accommodation. Proposed c7,000 sq.ft or 10,000 sq.ft including leisure.

SITE DESCRIPTION
This delightful property is set in a 0.74 acre corner garden plot amidst expansive landscaped gardens, bordered by mature hedgerows and trees that shield the property. Some of these trees reach impressive heights, enhancing the charm and character of the mature, green backdrop. This prestigious location itself, is a lush suburban street adorned with fully grown trees lining the road and surrounding the properties. These houses, typically spacious and detached, are set back from the road within generous gardens. The architectural styles span different eras, ranging from Victorian and Edwardian to contemporary designs, the only cohesive feature that gives continuity to the immediate area is the rich greenery which often only permits a glimpse of the fabulous houses beyond. There is no dominant vernacular style, individuality is the style that defines the character of this neighbourhood. Some of these houses are the work of renowned architects such as Edgar Wood and Henry Goldsmith.

6 bedroom detached house for sale in Bankhall Lane, Hale, WA15
Location: Altrincham

Detached House
  • £2,500,000

    6 bedroom | 3 bathroom | 6,035 sq ft

S H A R E   T H I S   P R O P E R T Y


6 bedroom detached house for sale in Bankhall Lane, Hale, WA15

S H A R E   T H I S   P R O P E R T Y


6 bedroom detached house for sale in Bankhall Lane, Hale, WA15

Other properties in this area


Disclaimer: The information displayed about this property comprises a property advertisement. ZEVELOP® makes no warranty as to the accuracy or completeness of the advertisement or any linked or associated information, and ZEVELOP® has no control over the content. This property advertisement does not constitute property particulars. The information is provided and maintained by the listing agent/seller/developer. Please contact the selling agent or developer directly to obtain any information which may be available under the terms of The Energy Performance of Buildings (Certificates and Inspections) (England and Wales) Regulations 2007 or the Home Report if in relation to a residential property in Scotland.