Description
Stunning 4-Bedroom Duplex in Iconic Murrays’ Mills, Ancoats – Over 2300 sq ft
Welcome to the largest residence within the award-winning Murrays’ Mills development – a rare and truly spectacular 4-bedroom duplex apartment offering over 2,300 sq ft of exceptional living space in the heart of Ancoats.
Set within a beautifully restored, historic mill, this extraordinary home seamlessly blends heritage features with contemporary design. Soaring vaulted ceilings, original wooden beams, and exposed brickwork celebrate the building's industrial past while providing a warm, character-rich atmosphere throughout.
The apartment spans two expansive levels, offering generous proportions in every room. Each of the four bedrooms is thoughtfully designed, with space for relaxation or home working, and the principal suite boasts both privacy and luxury. The open-plan living, dining, and kitchen area is a showstopper – perfect for entertaining.
Residents enjoy 24-hour concierge service and secure parking, all within one of Manchester’s most desirable neighbourhoods. Moments from Cutting Room Square, independent eateries, and the city centre, this is a home that delivers style, substance, and an unbeatable location.
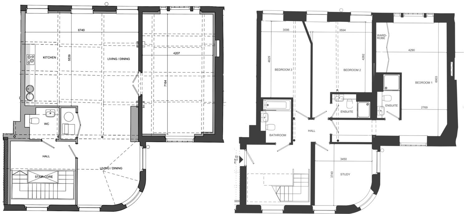
Lower Level - Situated on the second floor and accessible by stairs only, the entrance opens into a spacious hallway with ample space for coats and shoes. A window overlooks the internal courtyard, and a beautiful staircase leads to the upper level. From this hallway, you can access all four generously sized bedrooms—two featuring en-suite bathrooms, and two currently set up as office or entertainment rooms. A separate family bathroom is also conveniently located off the hallway.
Upper Level - The upper floor opens onto a spacious landing, complete with a WC and access to the first living area—a stunning, dual-aspect open-plan lounge, dining, and kitchen space. This area features beautiful vaulted ceilings and exposed brickwork, creating a striking and airy atmosphere. The upgraded kitchen includes a generous island, ideal for entertaining or enjoying casual meals. Beyond the original steel doors lies a second versatile living space, currently used as the main lounge. This room also boasts vaulted ceilings and dual-aspect views overlooking both the internal courtyard and the rooftops of Royal Mills.
Service Charge & Lease Information - Apartment Charges
Service Charge is currently £2,036.31 per quarter
Rent paid to Landmark is £325.00 per annum.
Building Insurance paid to Landmark is £1,715.30 (March 2025 to March 2026)
Car Park Charges: Parking Space No.7
Service Charge paid to Northern Group is currently £143.15 per quarter
Rent paid to Landmark is £50.00 per annum